第八章、暖通、空调图例及符号
一、线型及其含义


二、比例
|
图名 |
常用比例 |
可用比例 |
|
剖面图 |
1:50、1:100 |
1:150、1:200 |
|
局部放大图、
管沟断面图 |
1:20、1:50、1:100 |
1:25、1:30、
1:150、1:200 |
|
索引图、详图 |
1:1、1:2、1:5、
1:10、1:20 |
1:3、1:4、1:15 |
|
|
|
|
三、水、汽管道代号


四、水、汽管道阀门和附件图例
|
序号 |
名称 |
图例 |
备注 |
|
1 |
截止阀 |
|
|
|
2 |
闸阀 |
|
|
|
3 |
球阀 |
|
|
|
4 |
柱塞阀 |
|
|
|
5 |
快开阀 |
|
|
|
6 |
蝶阀 |
|
|
|
7 |
旋塞阀 |
|
|
|
8 |
止回阀 |
|
|
|
9 |
浮球阀 |
|
|
|
10 |
三通阀 |
|
|
|
11 |
平衡阀 |
|
|
|
12 |
定流量阀 |
|
|
|
13 |
定压差阀 |
|
|
|
14 |
自动排气阀 |
|
|
|
15 |
集气罐、 放气阀 |
|
|
|
16 |
节流阀 |
|
|
|
17 |
调节止回断阀 |
|
水泵出口用 |
|
18 |
膨胀阀 |
|
|
|
19 |
排入大气或室外 |
|
|
|
20 |
安全阀 |
|
|
|
21 |
角阀 |
|
|
|
22 |
底阀 |
|
|
|
23 |
漏斗 |
|
|
|
24 |
地漏 |
|
|
|
25 |
明沟排水 |
|
|
|
26 |
向上弯头 |
|
|
|
27 |
向下弯头 |
|
|
|
28 |
法兰封头或管封 |
|
|
|
29 |
上出三通 |
|
|
|
30 |
下出三通 |
|
|
|
31 |
变径管 |
|
|
|
32 |
活接头或 法兰连接 |
|
|
|
33 |
固定支架 |
|
|
|
34 |
导向支架 |
|
|
|
35 |
活动支架 |
|
|
|
36 |
金属软管 |
|
|
|
37 |
可屈挠橡 胶软接头 |
|
|
|
38 |
Y形过滤器 |
|
|
|
39 |
疏水器 |
|
|
|
40 |
减压阀 |
|
左高右低 |
|
41 |
直通型(或反冲型) 除污器 |
|
|
|
42 |
除垢仪 |
|
|
|
43 |
补偿器 |
|
|
|
44 |
矩形补偿器 |
|
|
|
45 |
套管补偿器 |
|
|
|
46 |
波纹管补偿器 |
|
|
|
47 |
弧形补偿器 |
|
|
|
48 |
球形补偿器 |
|
|
|
49 |
伴热器 |
|
|
|
50 |
保护套管 |
|
|
|
51 |
爆破膜 |
|
|
|
52 |
阻火器 |
|
|
|
53 |
节流孔板、减压孔板 |
|
|
|
54 |
快速接头 |
|
|
|
55 |
介质流向 |
|
在管道断开处时; 流向符号宜标注在管 道中心线上,其余可 同管径标注位置 |
|
56 |
坡度及坡向 |
|
坡度数值不宜与管 道起、止点标高同时标注。 标注位置同管径标注位置 |
五、风道代号
|
序号 |
代号 |
管道名称 |
备注 |
|
1 |
SF |
送风管 |
—— |
|
2 |
HF |
回风管 |
一、二次回风可附加1、2区别 |
|
3 |
PF |
排风管 |
—— |
|
4 |
XF |
新风管 |
—— |
|
5 |
PY |
消防排烟风管 |
—— |
|
6 |
ZY |
加压送风管 |
—— |
|
7 |
P(Y) |
排风排烟兼用风管 |
—— |
|
8 |
XB |
消防补风风管 |
—— |
|
9 |
S(B) |
送风兼消防补风风管 |
—— |
六、风道、阀门及附件图例
|
序号 |
名称 |
图例 |
备注 |
|
1 |
矩形风管 |
|
宽X高(mm) |
|
2 |
圆形风管 |
|
直径(mm) |
|
3 |
风管向上 |
|
|
|
4 |
风管向下 |
|
|
|
5 |
风管上升摇手弯 |
|
|
|
6 |
风管下降摇手弯 |
|
|
|
7 |
天圆地方 |
|
左接矩形风管, 右接圆形风管 |
|
8 |
软风管 |
|
|
|
9 |
圆弧形弯头 |
|
|
|
10 |
带导流片的巨形弯头 |
|
|
|
11 |
消声器 |
|
|
|
12 |
消声弯头 |
|
|
|
13 |
消声静压箱 |
|
|
|
14 |
风管软接头 |
|
|
|
15 |
对开多叶调节风阀 |
|
|
|
16 |
蝶阀 |
|
|
|
17 |
插板阀 |
|
|
|
18 |
止回风阀 |
|
|
|
19 |
余压阀 |
|
|
|
20 |
三通调节阀 |
|
|
|
21 |
防烟、防火阀 |
|
|
|
22 |
方形风口条缝型风口 |
|
|
|
23 |
条形风口 |
|
|
|
24 |
矩形风口 |
|
|
|
25 |
圆形风口 |
|
|
|
26 |
侧面风口 |
|
|
|
27 |
防雨百叶 |
|
|
|
28 |
检修门 |
|
|
|
29 |
气流方向 |
|
|
|
30 |
远程手控盒 |
|
|
|
31 |
防雨罩 |
|
|
七、风口和附件代号
|
序号 |
代号 |
图例 |
备注 |
|
1 |
AV |
单层格栅风口,叶片垂直 |
—— |
|
2 |
AH |
单层格栅风口,叶片水平 |
—— |
|
3 |
BV |
双层格栅风口,前组叶片垂直 |
—— |
|
4 |
BH |
双层格栅风口,前组叶片水平 |
—— |
|
5 |
C﹡ |
矩形散流器,*为出风面数量 |
—— |
|
6 |
DF |
圆形平面散流器 |
—— |
|
7 |
DS |
圆形凸面散流器 |
—— |
|
8 |
DP |
圆盘形散流器 |
—— |
|
9 |
DX﹡ |
圆形斜片散流器,﹡为出风面数量 |
—— |
|
10 |
DH |
圆环形散流器 |
—— |
|
11 |
E﹡ |
条缝形风口,﹡为条缝数 |
—— |
|
12 |
F﹡ |
细叶形斜出风散流器,﹡为出风面数量 |
—— |
|
13 |
FH |
门铰形细叶回风口 |
—— |
|
14 |
G |
扁叶形直出风散流器 |
—— |
|
15 |
H |
百叶回风口 |
—— |
|
16 |
HH |
门铰形百叶回风口 |
—— |
|
17 |
J |
喷口 |
—— |
|
18 |
SD |
旋流风口 |
—— |
|
19 |
K |
蛋格形风口 |
—— |
|
20 |
KH |
门铰形蛋格式回风口 |
—— |
|
21 |
L |
花板回风口 |
—— |
|
22 |
CB |
自垂百叶 |
—— |
|
23 |
N |
防结露送风口 |
冠于所用类型 风口代号前 |
|
24 |
T |
低温送风口 |
冠于所用类型 风口代号前 |
|
25 |
W |
防雨百叶 |
—— |
|
26 |
B |
带风口风箱 |
—— |
|
27 |
D |
带风阀 |
—— |
|
28 |
F |
带过滤网 |
—— |
八、暖通空调设备图例
暖通空调设备的图例宜按表3.3.1采用。
|
1 |
散热器及手动放气阀 |
|
左为平面图画法,中为剖面图画法,右为系统图(Y轴侧)画法 |
|
2 |
散热器及温控阀 |
|
|
|
3 |
轴流风机 |
|
|
|
4 |
轴(混)流失管道风机 |
|
|
|
5 |
离心式管道风机 |
|
|
|
6 |
吊顶式排气扇 |
|
|
|
7 |
水泵 |
|
|
|
8 |
手摇泵 |
|
|
|
9 |
变风量末端 |
|
|
|
10 |
空调机组加热、 冷却盘管 |
|
从左到右分别为加热、冷却及双 功能盘管 |
|
11 |
空气过滤器 |
|
从左至右分别为粗效、中效及高效 |
|
12 |
挡水板 |
|
|
|
13 |
加湿器 |
|
|
|
14 |
电加热器 |
|
|
|
15 |
板式换热器 |
|
|
|
16 |
立式明装风机盘管 |
|
|
|
17 |
立式暗装风机盘管 |
|
|
|
18 |
卧式明装风机盘管 |
|
|
|
19 |
卧式暗装风机盘管 |
|
|
|
20 |
窗式空调器 |
|
|
|
21 |
分体空调器 |
|
|
|
22 |
射流诱导风机 |
|
|
|
23 |
减振器 |
|
左为平面图画法, 右为剖面图画法 |
九、调控装置及仪表图例
|
序号 |
名称 |
图例 |
|
1 |
温度传感器 |
|
|
2 |
湿度传感器 |
|
|
3 |
压力传感器 |
|
|
4 |
压差传感器 |
|
|
5 |
流量传感器 |
|
|
6 |
烟感器 |
|
|
7 |
流量开关 |
|
|
8 |
控制器 |
|
|
9 |
吸顶式温度传感器 |
|
|
10 |
温度计 |
|
|
11 |
压力表 |
|
|
12 |
流量计 |
|
|
13 |
能量计 |
|
|
14 |
弹簧执行机构 |
|
|
15 |
重力执行机构 |
|
|
16 |
记录仪 |
|
|
17 |
电磁(双位)执行机构 |
|
|
18 |
电动(双位)执行机构 |
|
|
19 |
电动(调节)执行机构 |
|
|
20 |
气动执行机构 |
|
|
21 |
浮力执行机构 |
|
|
22 |
数字输入量 |
DI |
|
23 |
数字输出量 |
DO |
|
24 |
模拟输入量 |
AI |
|
25 |
模拟输出量 |
AO |
各种执行机构可与风阀、水阀组合
表示相应功能的控制阀门。
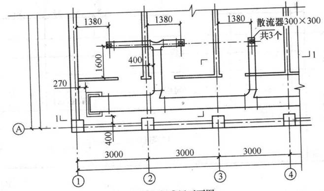
十、管道和设备布置平面图、剖面图示例
管道和设备布置平面图应按假象除去上层板后俯视规则绘制,其相应的垂直剖面图应在平面图中表明剖切符号。

标准层平面图

平、剖面示例
十一、平面图、剖面图索引符号的画法
平面图、剖面图中的局部需另绘详图时,应在平、剖面图上标注索引符号。索引符号的画法见下图。

索引符号的画法
十二、内视符号画法
当表示局部位置的相互关系,在平面图上应标注内视符号。

内视符号画法
十三、系统编号
1、一个工程设计中同时有供暖、通风、空调等两个及以上的不同系统时,应进行系统编号。
2、暖通空调系统编号、入口编号,应由系统代号和顺序号组成。
3、系统代号用大写拉丁字母表示,顺序号用阿拉伯数字表示。当一个系统出现分支时,可采用下图的画法。
系统代号
|
序号 |
字母代号 |
系统名称 |
|
序号 |
字母代号 |
系统名称 |
|
1 |
N |
(室内)供暖系统 |
|
9 |
H |
回风系统 |
|
2 |
L |
制冷系统 |
|
10 |
P |
排风系统 |
|
3 |
R |
热力系统 |
|
11 |
XP |
新风换气系统 |
|
4 |
K |
空调系统 |
|
12 |
JY |
加压送风系统 |
|
5 |
J |
净化系统 |
|
13 |
PY |
排烟系统 |
|
6 |
C |
除尘系统 |
|
14 |
P(PY) |
排风兼排烟系统 |
|
7 |
S |
送风系统 |
|
15 |
RS |
人防送风系统 |
|
8 |
X |
新风系统 |
|
16 |
RP |
人防排风系统 |

系统图代号、编号的画法
十四、立管号的画法
竖向布置的垂直管道系统,应标注立管号,在不一致引起误解时,可只标注序号,但应与建筑轴线编号有明显区别。

立管号的画法
十五、管道相对标高的画法
1、在无法标注垂直尺寸的图样中,应标注标高。标高应以m为单位,并应精确到cm或mm。
2、标高符号应以直角等腰三角形表示。当面标准层较多时,可只标注与本层楼(地)板面的相对标高。
3、水、汽管道所标高未予说明时,应表示为管中心标高。
4、水、汽管道标注管道外底或顶标高时,应在数字前加“底”或“顶”字样。
5、矩形风管所注标高应表示管底标高;圆形风管所注标高应表示管中心标高。当不采用此方法标注时,应进行说明。
6、平面图中无坡度要求的管道标高可标注在管道截面尺寸后的括号内。必要时,应在标高数字前加“底”或“顶”的字样。

相对标高的画法
十六、管道截面尺寸的标注符号及画法
1、低压流体输送用焊接管道规格应标注公称通径或压力。公称通径的标记应由字母“DN”后跟一个以亳米表示的数值组成;公称压力的代号应为“PN”。
2、输送流体用无缝钢管、螺旋缝或直缝焊接钢管、铜管、不锈钢管,当需要注明外径和壁厚时,应用“D(或Φ)外径×壁厚”表示。在不致引起误解时,也可采用公称通径表示。
3、塑料管外径应用“de”表示。
4、圆形风管的截面定型尺寸应以直径“Φ”表示,单位应为
mm.
5、矩形风管(风道)的截面定型尺寸应以“A×B”表示。“A”应为该视图投影面的边长尺寸,“B”应为另一边尺雨。A、B单位均应为mm。
6、水平管道的规格宜标注在管道的上方;竖向管道的规格宜标注在管道的左侧。双线表示的管道,其规格可标注在管道轮廓线内。

管道截面尺寸的画法
十七、多条管线的规格标注方法

多条管线规格的画法
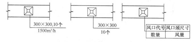
十八、风口、散流器表示方法

风口、散流器的表示方法
十九、定位尺寸的表示方法

定位尺寸的表示方式
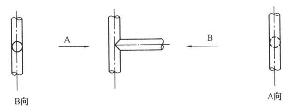
二十、单线管道转向的画法。

单线管道转向的画法
二十一、双线管道转向的画法。

双线管道转向的画法
二十二、单线管道分支的画法

单线管道分支的画法
二十三、双线管道分支的画法

双线管道分支的画法
二十四、送风管转向的画法

送风管转向的画法
二十五、回风管转向的画法

回风管转向的画法
二十六、管道断开的画法
平面图、剖视图中管道因重叠、密集需断开时,应采用断开画法。

管道断开的画法
二十七、管道在本图中断的画法
管道在本图中断,转至其他图面表示(或由其他图面引来)时,应注明转至(或来自的)的图纸编号。

管道在本图中断的画法
二十八、管道交叉的画法

管道交叉的画法
二十九、管道跨越的画法

管道跨越的画法
附录 防烟、防火阀功能表
防烟、防火阀功能
|
符号 |
说明 | |||||||||||
|
|
防烟、防火阀功能表 | |||||||||||
|
| ||||||||||||
|
阀体中文名称 |
功能 阀体带号 |
1 |
2 |
3 |
4 |
5 |
6 |
7 |
8 |
9 |
10 |
11 |
|
防烟防火 |
风阀 |
风量调节 |
阀体手动 |
远程手动 |
常闭 |
电动控制一次动作 |
电动控制反复动作 |
70℃ 自 动 关 闭 |
280℃ 自 动 关 闭 |
阀体动作反馈信号 | ||
|
70℃ 防 烟 防 火 阀 |
FD |
√ |
√ |
|
√ |
√ |
|
|
|
√ |
|
|
|
FVD |
√ |
√ |
√ |
√ |
|
|
|
|
√ |
|
| |
|
FDS |
√ |
√ |
|
|
|
|
|
|
√ |
|
√ | |
|
FDVS |
√ |
√ |
√ |
√ |
|
|
|
|
√ |
|
√ | |
|
MED |
√ |
√ |
√ |
√ |
|
|
√ |
|
√ |
|
√ | |
|
MEC |
√ |
√ |
|
√ |
|
√ |
√ |
|
√ |
|
√ | |
|
MEE |
√ |
√ |
√ |
√ |
√ |
|
|
√ |
√ |
|
√ | |
|
BED |
√ |
√ |
√ |
√ |
√ |
√ |
|
|
√ |
|
√ | |
|
BEC |
√ |
√ |
|
√ |
√ |
√ |
√ |
|
√ |
|
√ | |
|
BEE |
√ |
√ |
√ |
√ |
√ |
|
|
√ |
√ |
|
√ | |
续表A
|
符号 |
说明 | ||||||||||||
|
|
防烟、防火阀功能表 | ||||||||||||
|
| |||||||||||||
|
阀 体 中 文 名 称 |
功能 阀体功能代号 |
1 |
2 |
3 |
4 |
5 |
6 |
7 |
8 |
9 |
10 |
11 | |
|
防烟防火 |
风阀 |
风量调节 |
阀体手动 |
远程手动 |
常闭 |
电动控制一次动作 |
电动控制反复动作 |
70℃ 自 动 关 闭 |
280℃ 自 动 关 闭 |
阀体动作反馈信号 | |||
|
80℃ 防 烟 防 火 阀 |
FDH |
√ |
√ |
|
√ |
|
|
|
|
|
√ |
| |
|
FVDH |
√ |
√ |
√ |
√ |
|
|
|
|
|
√ |
| ||
|
FDSH |
√ |
√ |
|
√ |
|
|
|
|
|
√ |
√ | ||
|
FVSH |
√ |
√ |
√ |
√ |
|
|
|
|
|
√ |
√ | ||
|
MECH |
√ |
√ |
|
√ |
|
|
|
|
|
√ |
√ | ||
|
MEEH |
√ |
√ |
|
√ |
|
√ |
√ |
|
|
√ |
√ | ||
|
BECH |
√ |
√ |
√ |
√ |
|
|
|
√ |
|
√ |
√ | ||
|
BEEH |
√ |
√ |
√ |
√ |
√ |
|
|
√ |
|
√ |
√ | ||
|
板式排烟口 |
PS |
√ |
|
|
√ |
√ |
√ |
√ |
|
|
√ |
√ | |
|
多叶排烟口 |
GS |
√ |
|
|
√ |
√ |
√ |
√ |
|
|
√ |
√ | |
|
多叶送风口 |
GP |
√ |
|
|
√ |
√ |
√ |
√ |
|
√ |
|
√ | |
|
防火风口 |
GF |
√ |
|
|
√ |
|
|
|
|
√ |
|
| |
续表
注:1、除表中注明外,其余的均为常开型;且所用的阀体在动作后均可手动复位。
2、消防电源(24V DC),由消防中心控制。
3、阀体需要符合信号反馈要求的接点。
4、若仅用于厨房烧煮区平时排风系统,其动作装置的工作温度应当由70℃改为150℃。